400-1880365 13824505317
当前位置:首页 / 知识资讯 / 酒窖FAQ

如何做恒温恒湿的酒窖,酒窖恒温恒湿如何保持,恒温酒窖怎么做-比士亚酒窖来教您

来源:比士亚[VINCELLAR]    发布时间:2020/5/3    阅读:16194
如何做恒温恒湿的酒窖,酒窖恒温恒湿如何保持,恒温酒窖怎么做-比士亚酒窖来教您
      引用福布斯的一句名言,将来显示你生活品质的的不再是泳池与健身房,而是你的私人酒窖,新建设的别墅或者是大楼中,基本上也规划了酒窖的建造的空间,那么我们就或多或少要了解一些恒酒窖的要求,私人酒窖恒温恒湿如何保持,如何做?那么就让我们比士亚[VINCELLAR]专业的酒窖设计师教您如何做恒温恒湿的酒窖
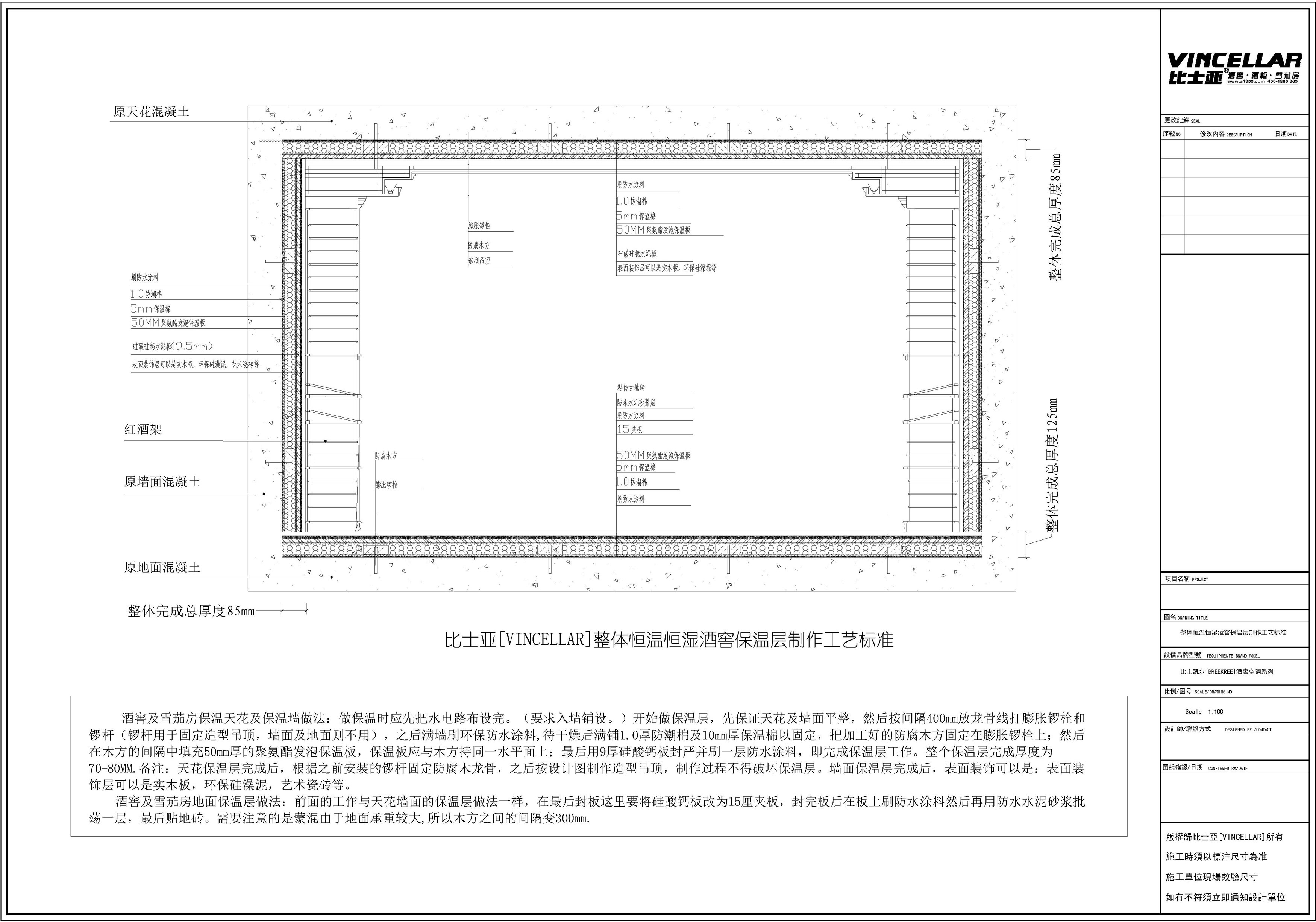
1.酒窖基础保温防水部分
  酒窖要实现恒温恒湿,基础保温防水部分也是非常关键,它起着对温湿度的恒定与机器的节能.我们用一张图片来介绍酒窖基础部分的制作要求,详细恒温酒窖墙面用什么材料等
2.酒窖门

     酒窖门,专业点说应该叫酒窖专用隔热保温门,酒窖门在设计,造型,定制上都有着同普通门很大的区别.具体的可以参考图纸或者参考比士亚[VINCELLAR]酒窖门定制做法

3.酒窖空调
     酒窖空调也称酒窖恒温恒湿机,它在做恒温恒湿的酒窖中,起到完全的一个心脏作用,前面的酒窖基础部分,酒窖门都是为了更好的为它做好辅助作用,靠它来实现酒窖恒温恒湿的调节控制

这样看了以上3点,你是不是明白了如何做恒温恒湿的酒窖,酒窖恒温恒湿如何保持,恒温酒窖怎么做这一系列的问题呢!

比士亚[VINCELLAR]整体恒温恒湿酒窖保温层制作工艺标准2020版


联系我们

深圳市鑫鸿比士亚酒窖文化传播有限公司
地址:深圳市福田区园岭街道上林社区八卦三路88-8号清凤荣盛创投大厦303
电话:400-1880365   13824505317
邮箱:520130588@qq.com

雪茄房设计定制案例
关于我们  |  酒窖设计  |  不锈钢酒柜  |  雪茄房  |  酒窖空调  |  联系我们
深圳市鑫鸿比士亚酒窖文化传播有限公司
地址:深圳市福田区园岭街道上林社区八卦三路88-8号清凤荣盛创投大厦303
电话: 400-1880-365 13824505317 E-mail:520130588@qq.com QQ:520130588
Copyright © 2006-2019深圳市鑫鸿比士亚酒窖文化传播有限公司 版权所有 
粤ICP备12040261号 
扫一扫,关注我们